Projet Eaubonne – Plus d’espace et un intérieur repensé pour un quotidien fluide

Contexte & objectifs

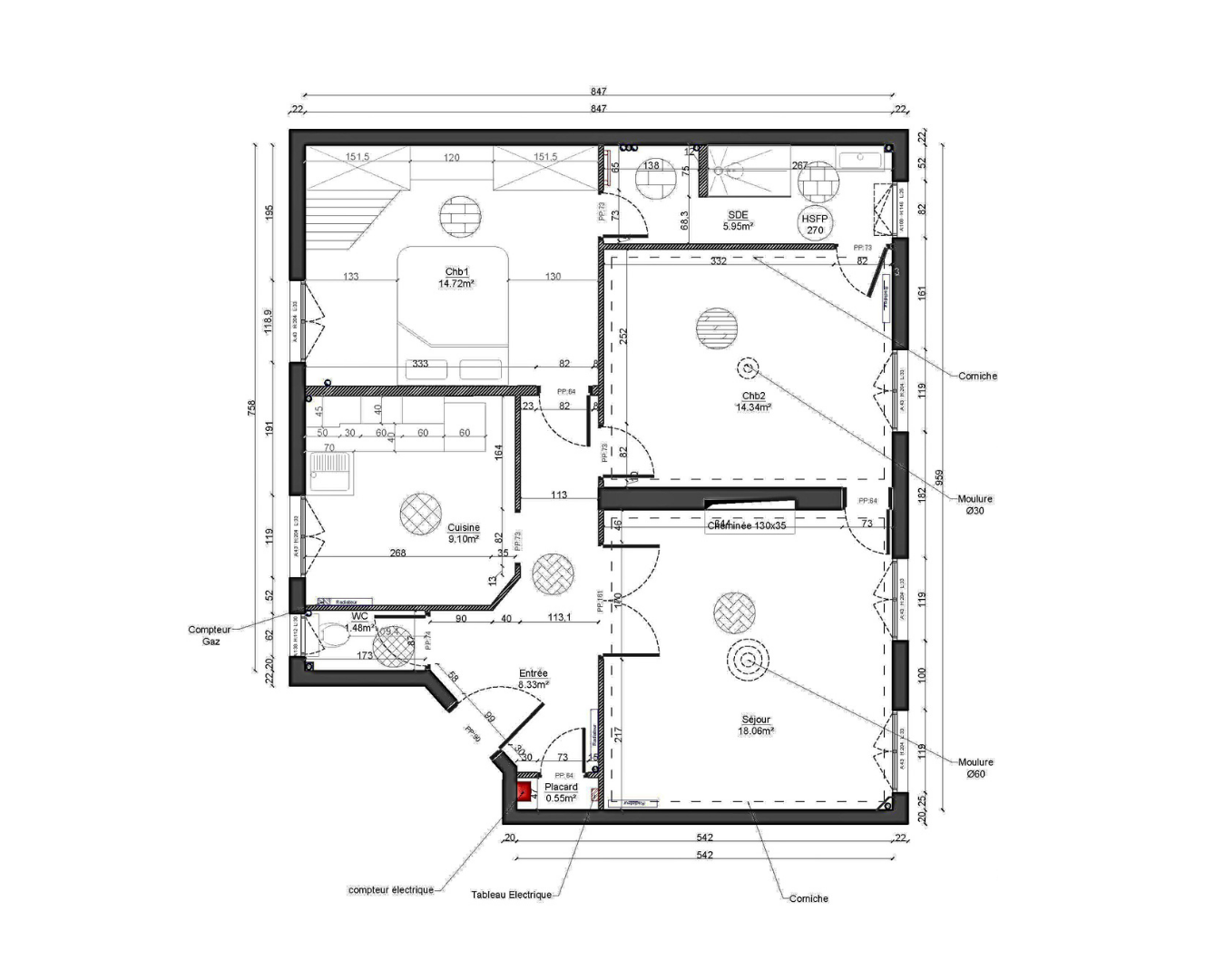
Cette appartement située à Eaubonne nécessitait une optimisation des espaces pour créer un lieu de vie plus ouvert, lumineux et adapté au télétravail. L’objectif principal était de redéfinir la circulation, créer un bureau fonctionnel et repenser la salle de bain.

Prestations réalisées

  • Design d’espace en collaboration avec un maître d’œuvre pour la modification et la création de cloisons.

  • Décoration sur mesure adaptée aux goûts et besoins des clients.

  • Harmonie colorée personnalisée pour créer une ambiance chaleureuse et cohérente.

  • Sélection des matériaux sols et murs pour un rendu esthétique et durable.

  • Sélection du mobilier pour optimiser l’espace tout en conservant le style souhaité.

  • Modélisation 3D pour visualiser le projet avant réalisation.

Déroulement & spécificités

Le projet a impliqué une collaboration avec le maître d’œuvre pour assurer la faisabilité des modifications structurelles. J’ai accompagné les clients à distance sur la création du projet depuis la conception jusqu’à la validation des ambiances et des matériaux.

Résultats & bénéfices

Le nouvel aménagement offre un espace de vie plus spacieux et fluide, un bureau fonctionnel, ainsi qu’une salle de bain optimisée pour plus de confort. L’ensemble reflète parfaitement les goûts et besoins des occupants.

Avant

Visuel du projet

Plan situation

Conception 3D

Précédent
Précédent

Projet Hyperion

Suivant
Suivant

Projet Laudairie