Projet Hyperion – Un appartement réinventé pour plus d’espace et de confort

Situé à Bordeaux, pour cet appartement les clients souhaitaient une refonte complète de son agencement intérieur. L’objectif était clair : supprimer une chambre afin de créer une véritable entrée et un espace de vie plus vaste, agrandir les deux chambres restantes, et offrir à l’une d’elles une salle de bain privée.

Contexte & objectifs

  • Design d’espace en collaboration avec le maître d’œuvre en charge de la rénovation pour la création et modification des cloisons

  • Décoration sur mesure avec conception de deux harmonies colorées :

    • Une harmonie générale pour l’ensemble de l’appartement

    • Une harmonie spécifique pour la seconde chambre

  • Sélection des matériaux sols et murs

  • Choix du mobilier adapté aux volumes et aux usages

  • Modélisation 3D et visite virtuelle pour visualiser le résultat avant travaux

Prestations réalisées

Le projet a été mené en étroite coopération avec le maître d’œuvre pour s’assurer de la cohérence entre la conception esthétique et les contraintes techniques. Les clients ont pu valider les choix décoratifs grâce aux planches couleurs, aux visuels 3D et à la visite virtuelle, leur offrant une projection réaliste du futur aménagement.

Déroulement & spécificités

Résultats & bénéfices

L’appartement propose désormais :

  • Une entrée définie et accueillante

  • Un espace de vie spacieux et convivial

  • Deux chambres plus grandes et fonctionnelles

  • Une suite parentale avec salle de bain privée

  • Une décoration harmonieuse, pensée pour le bien-être et la fluidité des espaces

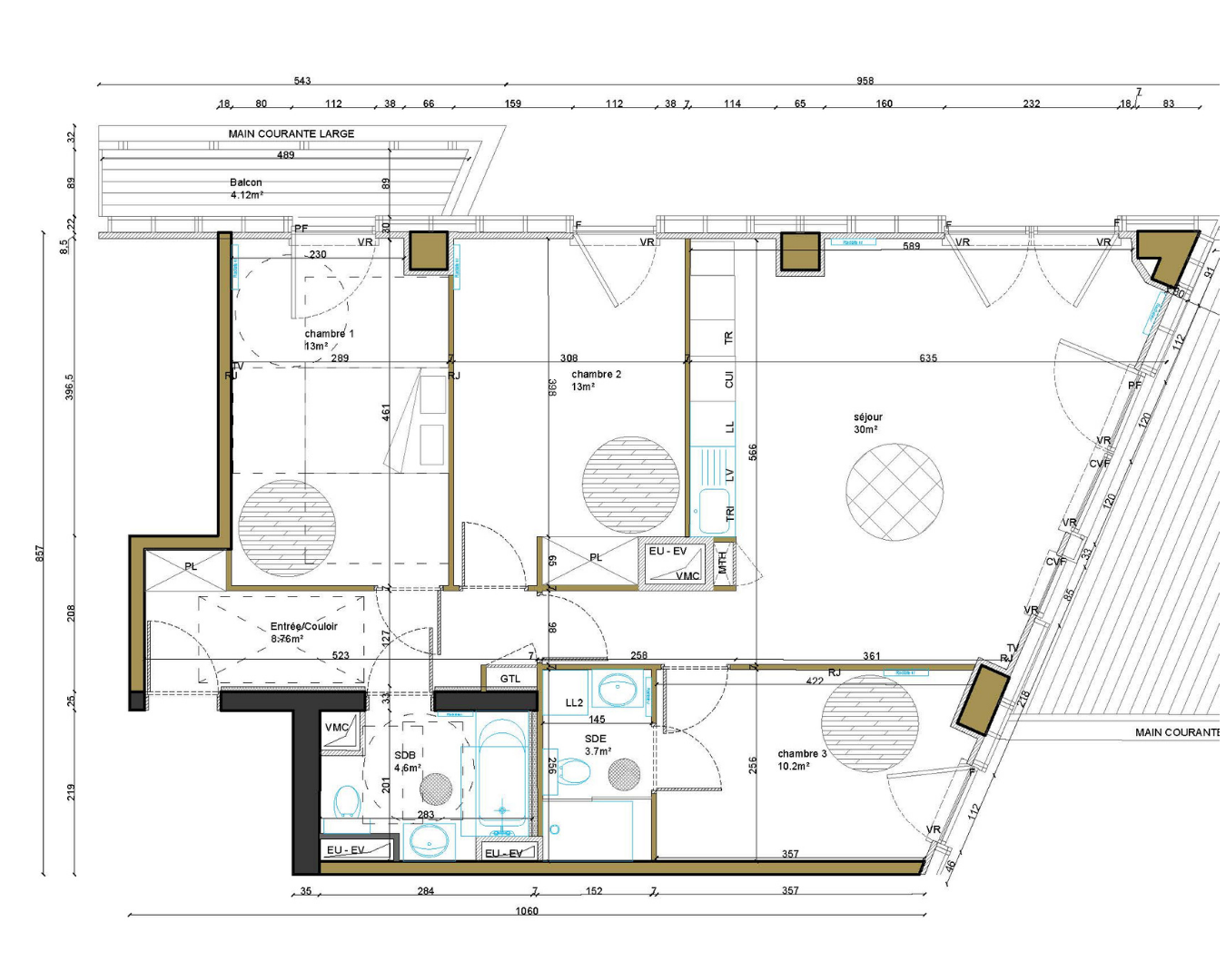
Avant

Visuel du projet

Design d’espace

Planche d’inspiration et palette de couleur

Planche matériaux et mobiliers

Conception 3D

Visite virtuelle

Précédent
Précédent

Projet 33b

Suivant
Suivant

Projet Eaubonne